جستجو مطالب
فیلتر شنی افقی | قیمت فیلتر شنی افقی
فیلتر شنی - فیلتر شنی افقی (Horizontal Sand Filter) - قیمت فیلتر شنی افقی

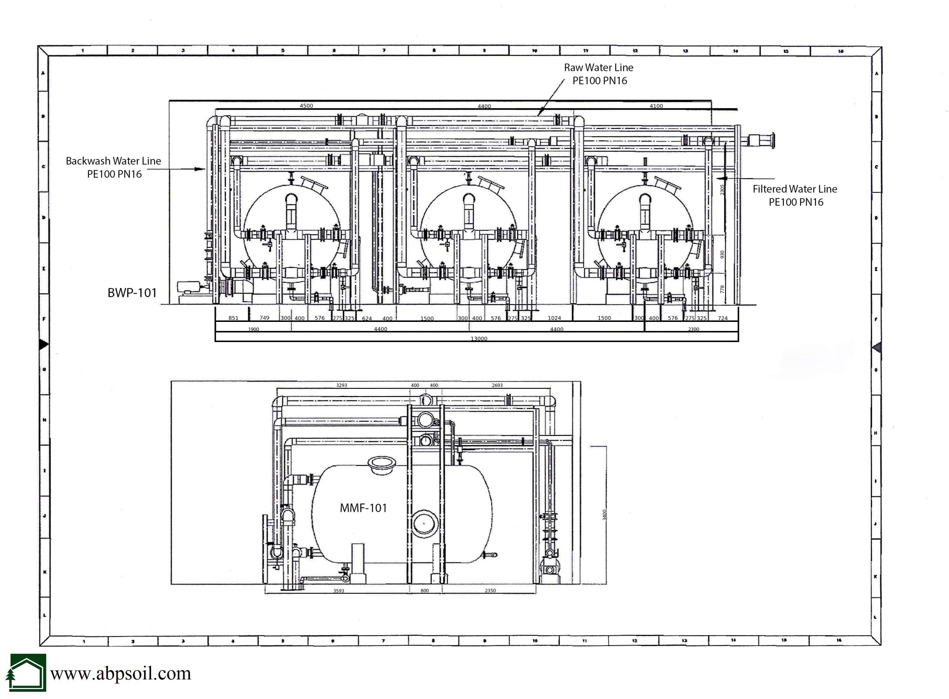
فیلتر شنی افقی معمولا در تصفیه خانه های آب شهری با مقیاس متوسط یا تصفیه خانه های آب صنعتی با مقیاس و ظرفیت بالا بکار گرفته می شود. غالباً زمانی که دبی آب مورد نیاز از 60 متر مکعب در ساعت (1140 مترمکعب در شبانه روز) بیشتر می شود، بکارگیری فیلتر شنی تحت فشار افقی اقتصادی بوده و توصیه می شود. در دبی های کمتر از 60 متر مکعب در ساعت از فیلترهای شنی تحت فشار افقی عمودی استفاده می گردد.
در صورتی که این فیلترها صرفاً از سیلیس دانه بندی شده پر شوند، به آنها فیلتر شنی افقی تک بستره (Single Media Horizontal Sand Filter) گفته می شود.
چنانچه این فیلترها دارای دو بستر (مثلاً سیلیس و آنتراسیت و یا سیلیس و گارنت) باشند به آنها فیلتر شنی افقی دو بستره (Dual Media Horizontal Sand Filter) می گویند.
در صورتی که این فیلترها دارای سه بستر و یا بیشتر باشند (سیلیس، گارنت و آنتراسیت و یا سیلیس، گارنت و کربن اکتیو) به آنها فیلتر شنی چند بستره (Multi Media Horizontal Sand Filter) گفته می شود.
جهت بکواش (شستشوی معکوس) فیلترهای شنی افقی معمولاً از ترکیب و توالی هوا و آب استفاده می شود که در این میان طراحی پمپ های هوادهی (بلوئر) و پمپ های آب بکواش اهمیت بسزایی دارند. قطر فیلتر، طول فیلتر، سایز لوله کشی، میزان سیلیس، ارتفاع بستر یا مدیا، تعداد نازل های آب جمع کن در فیلتر شنی، میزان آب لازم جهت بکواش فیلترهای شنی افقی از موارد مهم در طراحی فرآیند این فیلترها می باشد که در جدول زیر برخی از آنها به صورت خلاصه و تقریبی ارائه شده است.
| مدل صافی | ویژگی های مخزن |
سرعت خطی |
سرعت خطی |
سرعت خطی |
آب لازم جهت شستشوی برگردان |
||||
| طول | سطح مقطع | آبدهی | قطر لوله | آبدهی | قطر لوله | آبدهی | قطر لوله | ||
| CM | m^2 | m^3/h | in | m^3/h | in | m^3/h | in | m^3/h | |
| ABS-34 | 340 | 9/69 | 47 | 4 | 71 | 6 | 95 | 6 | 332 |
| ABS-37 | 370 | 10/42 | 51 | 4 | 76 | 6 | 102 | 6 | 356 |
| ABS-40 | 400 | 11/15 | 55 | 4 | 82 | 6 | 109 | 6 | 383 |
| ABS-42 | 420 | 11/89 | 58 | 4 | 87 | 6 | 116 | 6 | 407 |
| ABS-46 | 460 | 12/62 | 62 | 4 | 93 | 6 | 1121 | 6 | 432 |
| ABS-49 | 490 | 13/35 | 65 | 4 | 98 | 6 | 123 | 6 | 457 |
| ABS-52 | 520 | 14/08 | 69 | 4 | 103 | 6 | 138 | 6 | 482 |
| ABS-55 | 550 | 14/81 | 73 | 6 | 109 | 6 | 145 | 6 | 507 |
| ABS-58 | 580 | 14/55 | 76 | 6 | 114 | 6 | 152 | 6 | 532 |
| ABS-61 | 610 | 16/28 | 80 | 6 | 119 | 6 | 159 | 6 | 557 |
| ABS-64 | 640 | 17/01 | 83 | 6 | 125 | 6 | 166 | 6 | 582 |
| ABS-67 | 670 | 17/74 | 87 | 6 | 130 | 6 | 174 | 6 | 607 |
| ABS-70 | 700 | 18/47 | 90 | 6 | 136 | 6 | 181 | 6 | 632 |
| ABS-73 | 730 | 19/21 | 94 | 6 | 141 | 6 | 188 | 8 | 657 |
| ABS-76 | 760 | 19/94 | 97 | 6 | 146 | 6 | 195 | 8 | 682 |
| ABS-79 | 790 | 20/67 | 101 | 6 | 152 | 6 | 202 | 8 | 708 |
| ABS-82 | 830 | 21/40 | 105 | 6 | 157 | 6 | 209 | 8 | 733 |
| ABS-85 | 850 | 22/13 | 109 | 6 | 164 | 6 | 218 | 8 | 758 |
| ABS-88 | 880 | 22/86 | 112 | 6 | 168 | 6 | 224 | 8 | 783 |
| ABS-91 | 910 | 60/23 | 115 | 6 | 173 | 6 | 231 | 8 | 800 |
در دبی های کمتر از 60 متر مکعب در ساعت (در تصفیه خانه های آب کوچک مسکونی، استخرهای شنا و تصفیه خانه های آب صنعتی کوچک) از فیلترشنی تحت فشار عمودی استفاده می گردد.
شماتیک فیلتر شنی افقی

1- ورود آب
2- خروجی آب
3- دریچه یا منهول بازدید فوقانی
4- باکس یا کلکتور تقسیم آب
5- نازل قارچی آب
6- پایه فیلتر
7- نازل پلیت
8- عدسی ابتدا و انتهای فیلتر
9- سیلیس دانه درشت (سیلیس ساپورت نازل)
10- سیلیس دانه ریز
11- گارنت
12- آنتراسیت
13- بدنه فیلتر
14- منهول بازدید تحتانی
شماتیک فیلتر شنی افقی
از طریق لینک زیر میتوانید نقشه های فنی فیلتر شنی افقی را دانلود کنید:
|
|
ویدیو نحوه عملکرد فیلتر شنی افقی
مشاوره و استعلام قیمت فیلتر شنی افقی
فیلترهای شنی به عنوان یکی از تجهیزات کلیدی در سیستمهای تصفیه آب، در مدلهای متنوعی تولید میشوند که فیلتر شنی افقی (Horizontal Sand Filter) یکی از کارآمدترین انواع آن، بهویژه برای پروژههای با دبی بالا و محدودیت ارتفاع، محسوب میشود. شرکت ما با تکیه بر دانش فنی و سابقهای طولانی در زمینه طراحی، ساخت و اجرای انواع فیلتر شنی، راهکارهای مهندسیشده و سفارشی را برای صنایع مختلف ارائه میدهد. ما کیفیت ساخت و عملکرد بهینه انواع فیلترهای شنی، از جمله مدلهای افقی، را برای رسیدن به بالاترین استاندارد تصفیه تضمین میکنیم. اطلاعات ارائه شده در وبسایت کلی می باشد. جهت دریافت اطلاعات بیشتر و مشورت در خصوص پروژه مورد نظرتان، با کارشناسان شرکت ابنیه پایدار سبز تماس حاصل نمایید.
فیلتر شنی ایمکس, فیلتر شنی فایبرگلاس, فیلتر شنی فلزی, فیلتر شنی تصفیه آب استخر, فیلتر شنی استخری, فیلتر شنی پرورش ماهی, فیلتر شنی تصفیه فاضلاب, فیلتر شنی تند, فیلتر شنی استخر پرورش ماهی, فیلتر شنی cipu ,فیلتر شنی emaux, فیلتر شنی ایمکس emaux, فیلتر شنی, frp قیمت فیلتر شنی frp, فیلتر شنی hayward, فیلتر شنی hiwater, فیلتر شنی mtc, فیلتر شنی okeyh, فیلتر شنی pentair, فیلتر شنی p400, فیلتر شنی pdf, قیمت فیلتر شنی 2 اینچ, فیلتر شنی 32 اینچ, قیمت فیلتر شنی 40 اینچ, فیلتر شنی 800, قیمت فیلتر شنی آبیاری قطره ای, قیمت فیلتر شنی هایوارد, قیمت فیلتر شنی پاکمن, قیمت فیلتر شنی frp ,قیمت فیلتر شنی فایبر گلاس, قیمت فیلتر شنی استخری, قیمت فیلتر شنی ایمکس, قیمت فیلتر شنی استخر هایوارد, قیمت فیلتر شنی کشاورزی, قیمت فیلتر شنی تصفیه آب, قیمت فیلتر شنی 2 اینچ, فروش فیلتر شنی استخر, فروش فیلتر شنی صنعتی, فروش فیلتر شنی دست دوم, خرید فیلتر شنی, خرید فیلتر شنی استخر, فروش نازل فیلتر شنی, فیلتر شنی هایوارد, فیلتر شنی تحت فشار, فیلتر شنی تصفیه فاضلاب, فیلتر شنی آبیاری قطره ای, قیمت فیلتر شنی آبیاری قطره ای, قیمت فیلتر شنی هایوارد, قیمت فیلتر شنی پاکمن, قیمت فیلتر شنی استخر هایوارد, خرید فیلتر شنی, خرید فیلتر شنی استخر, خرید فیلتر شنی آکواریوم, فروش فیلتر شنی صنعتی, خرید فیلتر زیر شنی, فروش فیلتر شنی استخر, فروش فیلتر شنی تصفیه آب, فروش سیلیس فیلتر شنی, فروش فیلتر شنی استخر, فروش فیلتر شنی, بازار فروش فیلتر شنی, مرکز فروش فیلتر شنی تهران, مرکز فروش فیلتر شنی استخر, فیلتر شنی افقی, فیلتر شنی تحت فشار افقی, عملکرد فیلتر شنی, فیلتر شنی عمودی, ساخت فیلتر شنی دست ساز, شرکت آبانگان فیلتراسیون, فروش فیلتر شنی دست دوم, شیر فیلتر شنی, فیلتر شنی آبیاری قطره, محاسبات فیلتر پرس, اجزای فیلتر شنی, نحوه لوله کشی فیلتر شنی, اصول طراحی فیلتر پرس, نازل برنجی فیلتر شنی, اطلس آب, فیلتر شنی استخر چیست, شرکت های سازنده, RO فیلتر کارتریج, قیمت فیلتر شنی ایمکس, تولید فیلتر شنی, نقش لایه های شن و ماسه در بهبود کیفیت اب, فیلتراسیون کشاورزی, تصفیه استخر, کار فیلتر شنی, سازنده فیلتر شنی, سند فیلتر چیست, مخزن,frp قیمت فیلتر شنی استخر, نحوه لوله کشی فیلتر شنی, فیلتر کربنی, جدول محاسبه فیلتر شنی, پاکمن, تصفیه شنی استخر تحت فشار اتمسفریک, فیزیكی, فیلتراسیون, بستر شن, ماسه های دانه بندی شده, ذرات معلق, شن سیلیسی, آنتراسیت, حذف رنگها, آب برگشتی برجهای خنک کننده, فیلتراسیون فاضلابهای صنعتی و انسانی, تصفیه آب های سطحی, فیلترهای کربنی, طراحی و محاسبه فیلتر شنی, عوامل موثر بر کارکرد فیلتر شنی, شست و شوی معکوس, فیلتر استخر, زلال سازي آب و پساب ,کلرزن, پکیج تصفیه فاضلاب, Sand Filter ,backwash, فیلتر شنی چگونه باعث تصفیه آب می شود, مزایای فیلتر شنی فایبرگلاس و فلزی, طراحی فیلتر شنی چگونه است ؟, لیست قیمت بروز فیلترهای شنی, بک واش, بکواش





